Cinéma de la ferme du Buisson et centre de loisir
Noisiel | 2019
Infos
- maîtrise d'ouvrage SAN du Val Maubuée
- surface 2 300 M²
- coût des travaux 5 600 000 € HT
- livraison 2019
MAIN TENDUE
La Ferme du Buisson, inscrite à l'inventaire des monuments historiques, construite en 1880 pour la production laitière du chocolatier Meunier, est consacrée Scène nationale depuis sa restructuration en 1990, promouvant et diffusant la création contemporaine française et internationale; elle dispose notamment d'un Théâtre de 800 places, d'un espace de concert, d'un chapiteau, et d'un cinéma art et essai.
Le projet concerne le renouvellement de deux de ses équipements, distincts tant sur plan du fonctionnement que du public accueilli: son centre de loisirs (en remplacement d'un centre provisoire), et son cinéma "art et essai" qui se voit restructuré et étendu.
La Ferme du Buisson se présente construite en symétrie autour d’un axe Nord-Sud matérialisé par le corps de ferme central, dans lequel se trouve actuellement le Théâtre. Cette symétrie reste toutefois relative, puisqu' un corps de bâtiment est manquant au Sud Est.
La ferme étant prise allégoriquement comme un corps, le projet consiste à venir « greffer » un corps « étranger » compatible avec les existants en remplacement de cette partie manquante, le complexe cinématographique étant la reconstruction de l’avant bras, et le centre de loisirs étant celle de la main.
Ce corps greffé se présente sous forme d’un monolithe en béton teinté inspiré des tuiles et briques des existants. Sa forme nait de la continuité formelle du pignon de la ferme existante et plus largement des pignons des architectures environnantes anciennes ou modernes.Plus notre projet s’éloigne des points de coutures, de liaison, plus sa forme se libère et se tend comme les doigts d’une main vers le parc ouvert au Sud Est du site...
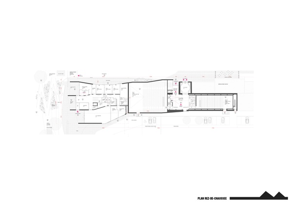
Le cinéma s'étend au sein d'une grange dotée d'une charpente remarquable, préservée et mise en valeur, et en extension de cette grange. L'existant est remodelé afin d'accueillir une salle de 148 places avec écran de 7.5m, et le Hall qui distribue lui-même l' espace dédié aux ateliers cinéma et avant premières ainsi que l'extension du cinéma; cette dernière abrite une salle de 257 places avec écran de 13m, le dispositif de circulations verticales et les équipements techniques. Les salles sont confortables, équipées pour des projections en numérique et en argentique.
L’implantation du centre de loisirs est idéale, donnant au Sud sur le parc existant dont une partie devient cour de récréation. L’organisation intérieure repose sur une volonté de garder le maximum de fonctions au rez de chaussée, notamment celles dédiées aux tout petits, et la grande salle d’évolution; accessible directement depuis le hall et le parvis d’entrée, elle peut être utilisé de façon distincte et complémentaire pour les réunions avec les parents ou le tissu associatif. L'aménagement des espaces offre des vues larges et privilégiées sur les cimes des arbres du parc et sur la ferme, tout en intégrant des dispositions naturelles de protection solaire par ombres portées (débords d'étage, loggias).
équipe
- Linéaire A (architecte cotraitant)
- Randja (architecte mandataire)
- ID (Bureau d'études TCE)
- Impédance (acousticien)