Multiplexe CRISTAL

Aurillac | 2015

Infos

LE QUATRIÈME ÉLÉMENT

Ce projet s'est construit tout d'abord à l'échelle de la ville, définissant une place avec son front bâti, son emprise, ses perspectives, ses hauteurs relatives et sa pratique ; le complexe cinématographique en est le quatrième élément fondateur, complément contemporain et festif aux trois corps de bâtiment de la caserne de la fin du dix-neuvième siècle; compact et efficace dans son fonctionnement, expressif dans son architecture, il est moteur d’animation du centre d’Aurillac par un public local et régional, et devient repère, fond de scène, plateau ou décor du festival international de théâtre de rue d’Aurillac.

Les trois corps de bâtiment de l’ancienne caserne d’Aurillac génèrent la place de la Paix, dont les angles ouverts laissent le regard du promeneur découvrir, au sud-est et au nord-est, les lignes libres et vertes du « grand paysage » dominant la cité.
La rigueur de l’expression et de l’implantation de ces bâtiments monolithiques, typiques de l’architecture militaire de la fin du dix neuvième siècle, impliquerait une définition très claire de l’espace public si la face ouest de la place n’était pas d’une lecture floue, déconstruite à l’échelle du piéton.
Le bâtiment de l’horloge, à l’Est, défini naturellement la direction Est Ouest de la Place comme un axe fort.

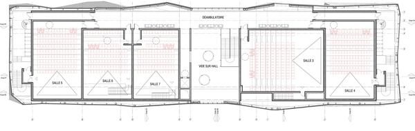
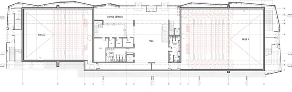
Nous avons donc choisi de compléter la définition des contours de la Place par l’implantation d’un quatrième corps de bâtiment lui aussi monolithique, le cinéma, de fonctionnement compact sur deux niveaux, aligné sur la rue, de hauteur dialoguant avec celle des corps de bâtiment existants, d’emprise au sol réduite, restituant une place ample et lisible offrant une grande flexibilité d’accueil aux évènements et notamment au festival international de théâtre de rue.
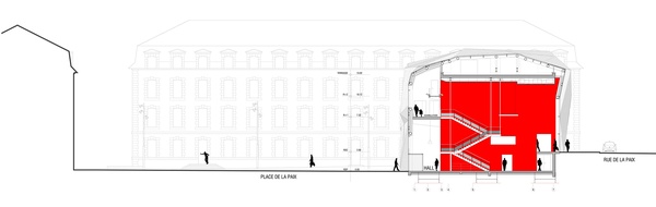
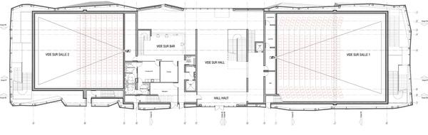
Afin d’assurer la perméabilité d’accès à la Place la rue Caylus est prolongée, devenant rue intérieure au projet, jusqu’à la Place de la Paix. Un jeu de niveaux permet d’assurer une fonction traversante du Hall sans nuire au contrôle des billets nécessaire au programme.Les édifices voués au spectacle s'étant exprimés de tout temps dans la Ville de façon singulière et festive, nous avons travaillé l’expression du projet à partir de la notion de mouvement, inhérente au cinéma, dans une architecture saisissant le déploiement d’un cristal né de la Place, vibration de facettes jouant avec l’éclairage diurne ou nocturne, dans un mouvement continu d’ombres et de lumière.
Cette expression se confirme dans le traitement de la place, qui trouve une configuration naturelle en quatre facettes de faibles pentes, mises en valeur naturellement sous le soleil. Les quatre angles de la place sont ouverts, découvrant au Sud Est et au Nord Est le grand paysage, au Sud Ouest et au Nord Est l’alignement des arbres au long de la rue créée par le projet : la rue de la Paix.

Le revêtement de la place devient vêtement du bâtiment, dans un dispositif de double peau qui laisse une grande liberté d’expression plastique tout en renforçant les qualités d’isolation et de barrière aux surchauffes du complexe cinématographique. Cette peau, pleine au droit des volumes de salles, se fait transparente au droit du Hall et du déambulatoire d’accès aux salles hautes. L’accueil et la circulation du public se font donc à la lumière naturelle, avec des vues cadrées sur le Grand paysage, la Place, le bâtiment de l’Horloge, l’horloge elle-même…

Le traitement de la Place, principalement minéral en accord avec l‘histoire du site, se fait de façades à façades en distinguant d’une part les zones de circulation et d’autre part un espace vaste, simple et libre de recevoir tout type d’évènement, central, protégé, innervé d'un maillage de boîtiers fluides, entièrement piétonnier. Le point restauration s’ouvre sur ce parvis avec une terrasse bien exposée.
Enfin, à l’Ouest, une ligne de plantation d’arbres de hautes tiges « cale » la rue de la Paix.

Le site est donc marqué par le contour haut, en quelque sorte « en pointillé », des lucarnes de toitures et des cimes des arbres dans lequel s’inscrivent clairement les quatre façades de la Place de la liberté, dont l’élément Ouest est un édifice festif : le complexe culturel et cinématographique d’Aurillac.

équipe

- Linéaire A (architecte mandataire)
- Randja (architecte associé)
- Saunier et associés (Bureau d'études TCE)
- PEUTZ (acousticien)
- Linéaire A (scénographe)

1 / 18
2 / 18
3 / 18
4 / 18
5 / 18
6 / 18
7 / 18
8 / 18
9 / 18
10 / 18
11 / 18
12 / 18
13 / 18
14 / 18
15 / 18
16 / 18
17 / 18
18 / 18
×