Cinéma de Rambervilliers
Rambervilliers | 2022
Infos
- maîtrise d'ouvrage VILLE DE RAMBERVILLERS
- surface 1 090 M²
- coût des travaux 3 060 000 € HT
- livraison CONCOURS 2022
Le futur cinéma de Rambervillers s’implante au cœur d’un vaste ilot, appartenant au secteur protégé du centre-ville fait l’objet d’un projet de restructuration dans le cadre de la revitalisation du centre bourg de Rambervillers.
Le cinéma s’implante sur une parcelle au sud-est de l’ilot, et occupe ainsi une place stratégique dans le tissu urbain, à l’articulation entre la rue Clémenceau et la nouvelle traversée piétonne. Se glissant dans un tissu à majorité résidentielle, l’architecture singulière du cinéma articulera les différents espaces publics, tout en créant un repère et une respiration dans l’enchainement des bâtiments d’habitation. Au cœur du centre-ville, le cinéma participe ainsi à la création de nouveaux usages, générant de nouveaux lieux de sociabilité et contribue au dynamisme de la ville.
Le nouveau cinéma est complètement ouvert sur la traversée de cœur d’ilot où prend place le parvis. Le hall d’accueil se prolonge ensuite dans une série d’espaces de déambulation et de circulation le long de la façade rue Clémenceau. Ces espaces dialoguent avec la ville, et permettent d’articuler la rue Clémenceau avec l’espace public du cœur d’ilot. Les flux du cinéma se lisent ainsi en façade, donnant à voir les usages de l’équipement ouvert sur la ville, et générant ainsi un rapport entre l’intérieur et l’extérieur.
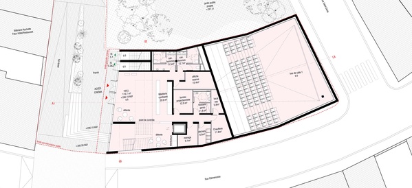
Les dimensions restreintes de la parcelle pour l’implantation d’un cinéma de 3 salles amènent à superposer les salles et à développer un cinéma vertical, sur plusieurs niveaux. Toutefois, pour s’intégrer au mieux à son environnement proche, la hauteur du bâtiment du cinéma ne doit pas excéder celle du bâti du centre bourg. De plus, la présence de vestiges archéologiques sous le bâtiment et l’implantation de celui-ci en zone inondable, ne permet pas d’enterrer les bas de salle du bâtiment.Au vue de ce contexte, le cinéma se soit d’être particulièrement compact. Le programme du cinéma se développe donc sur une série de niveaux, demi-niveaux successifs, générés par l’imbrication des volumes des salles et des espaces de service. Des décalages en façades rendent lisible ce jeu de volumes massifs imbriqués, entre lesquels se glissent les circulations verticales travaillées en transparence, langage architectural caractéristique des équipements cinématographiques
Ces jeux de retrait et de glissement entre un volume bas et un volume haut permettent aussi de minimiser la massivité de l’équipement en donnant du rythme à la façade. Le socle bas et le volume haut sont traités avec deux matériaux distincts, pour souligner les jeux d’imbrication et de composition du bâtiment.
Le volume bas, que constituent la grande salle et les espaces d’accueil à rez-de chaussée, est traité comme un socle. Il est traité en grès des Vosges. Cette pierre locale, participe à l’intégration colorimétrique du bâtiment dans son environnement, s’inscrivant dans la continuité du contexte de centre bourg rambuvetais. Par ailleurs, l’utilisation d’un matériau issu d’exploitation locale participe à réduire l’impact énergétique du projet et associe les acteurs locaux. Enfin, le grès des Vosges présente de nombreuses nuances de couleurs, de sablages, et de veinages d’une pierre à l’autre, ce qui rythme la façade et anime le parcours des piétons en rez-de-chaussée. Deux grandes ouvertures percent ce socle en grès sur la rue Clémenceau, donnant à voir les circulations verticales du cinéma. Le deuxième volume, celui des salles hautes, conserve un aspect minéral : il est traité en béton architectural teinté dans la masse, d’une couleur beige légèrement rosée se rapprochant de la teinte du grès des Vosges. La teinte du béton est un peu plus claire que la pierre, le volume haut s’effaçant ainsi au-dessus du socle en grès. Entre ces deux volumes opaques se glissent les volumes ouverts des circulations mettant en avant le parcours des spectateurs.
équipe
Linéaire A (mandataire)
QUADRIPLUS (BET TCE)
PEUTZ (BET Acoustique)