Ensemble commercial Cap Nord
Bourges | 2014
Infos
- maîtrise d'ouvrage EPARECA
- surface 1 700 M²
- coût des travaux 2 700 000 € HT
- livraison Concours déclaré sans suite
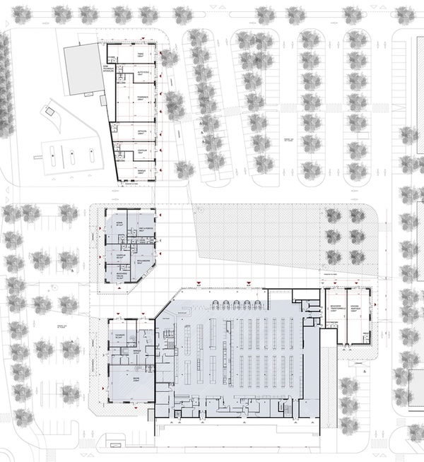
Implantation:
L'implantation proposée est la conséquence de plusieurs volontés:
• Préserver une réserve foncière libre de contraintes au nord du site, permettant d'établir un dialogue entre la programmation à venir et le centre commercial restructuré,
• Ne pas tourner des façades opaques vers des espaces vivants actuels ou futurs, et donc en particulier masquer l'opacité arrière non maîtrisée du plot abritant actuellement l'enseigne "Pâte à Pain" et la station service,
• Ancrer le programme commercial sur les flux principaux: avenue Charles de Gaulle, avenue de Lattre de Tassigny, le mail piéton issu de l'éco-quartier et le flux piéton connectant le quartier des Gibjoncs.
Composition du plan masse: rupture ou accompagnement?
Face à la puissance des lignes de composition du site, deux attitudes sont envisageables: s'affranchir du champ qui en découle afin de spécifier le projet, ou se glisser dans le maillage N/S, et E/O de ce champ, pour bénéficier de la force et de l'évidence qui en résultent. Compte tenu de la petite échelle des extensions, nous avons choisi d'exprimer une unité d'ensemble dans une composition franche et lisible accompagnant les lignes de force du site.
Le traitement des abords proposé renforce l'ancrage du projet dans son contexte, notamment la création du parvis, "tapis urbain", qui déroule un lien physique et visuel entre les plots commerciaux d'une part, et les flux cités plus haut d'autre part. Son dessin et le calepinage bicolore de son revêtement dynamisent la lecture des espaces extérieurs, et soulignent les liaisons en pied de commerces.
Expression: enveloppe animée et protectrice:
Déambuler et choisir, courir, découvrir, autant de mouvements et de rythmes qui ponctuent la perception de l'architecture d'un centre commercial. Et si, à l'inverse, l'architecture proposait de jouer avec cette cinétique, et devenait mouvante dans sa perception?
Par ailleurs le programme auquel nous répondons inscrit une volonté forte de sécurisation des lieux et de pérennité des matériaux, ainsi qu'un vocabulaire de protection des vitrines qui sera un composant important de l'expression d'ensemble. Comment modeler cette contrainte en expression plastique?
Saisissez deux tôles d'acier perforées. Posez l'une sur un fond opaque, l'autre lui faisant face à quelques centimètres de distance, les perforations étant légèrement décalées; exécutez de votre regard un déplacement panoramique face à cet ensemble: il se met à bouger! Avancez ou reculez: il s'anime!
Le projet choisit donc l'occasion des mouvements du public pour créer une enveloppe animée et protectrice, alternant les éléments vitrés des vitrines et une double peau d'acier perforé, constituée elle-même des volets coulissants de protection des commerces pour la première peau, et de l'habillage des pleins de façade pour la seconde.
Paradoxalement, cette double peau d'acier brut paraît légère comme une dentelle. Elle court en bandeau libre, comme un ruban, d'un commerce à l'autre, joue non seulement avec le mouvement mais aussi avec l'ombre et la lumière, les transparences, les semi transparences, les opacités... apportant clarté et, tout à la fois, unité et diversité. L'éclairage des façades étant disposé dans la double peau, celle-ci devient écrin lumineux, continuant à assurer de nuit la personnalité du lieu.
équipe
Architecte mandataire : Linéaire A
BET Structure : I A
BET Fluides : Innovation fluides
Economiste : Fabrice Bougon
BET VRD : ATPI