IME des Grattes
Aix-les-Bains | 2012
Infos
- maîtrise d'ouvrage APEI les Papillons Blancs
- surface 1 222 M²
- coût des travaux 1 867 000 € HT
- livraison CONCOURS
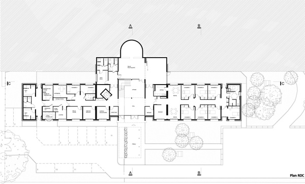
Transformation du bâtiment des Griattes en internat pour enfants et adolescents
Notre parti réside dans la volonté de conjuguer la qualité du site au potentiel du bâtiment pour apporter la douceur de vie aux pensionnaires, dans un souci de pertinence. Les outils pour y parvenir sont issus pour l'essentiel de la nécessité de reconvertir à la fois le site et le bâti aux usages propres de nouveaux occupants.
Appuyé sur les courbes du paysage, que surligne la cime des arbres, le bâtiment proposera une lecture paisible de ses séquences. L'emploi d'un matériau naturel pour les interventions architecturales rendues nécessaires pour résoudre les questions d'organisation spatiale ou thermiques encouragera à tisser des liens d'évidences entre la pratique des espaces extérieurs et intérieurs.
La fonction d'hébergement du bâtiment existant est propice à la reconversion projetée en internat, tout en restant dans le fil directeur de notre parti. Nous sommes attachés à proposer un fonctionnement lisible, efficace, et flexible issu d'une somme d'interventions "nécessaires et suffisantes" pour ne pas affecter le budget de l'opération.
C'est dans ce même esprit que nous nous sommes attachés à renforcer les qualités paysagères et vivantes du site pour optimiser la gestion des flux générés par les accès divers et créer des ambiances propices aux nombreuses activités extérieures.Le site du projet en lui même procède d'une double appartenance de par sa situation : Il se relie dans son environnement aux autres structures de l'APEI, l'ancienne scierie située à proximité immédiate, le siège de l'association et le restaurant d'application situé en surplomb du plateau.
Cependant, si le siège et le restaurant présentent une certaine homogénéité de traitement, justifiée par leur relation en face à face sur leur plateau et leur appartenance à la même fonction d'ordre professionnel, le futur internat, en revanche, en contrebas de la colline, dialogue avec l'environnement résidentiel peu dense.
Sa fonction résidentielle nous a donc incité à renforcée son appartenance à cet environnement et à nous inscrire en rupture avec le vocabulaire choisi pour les autres équipements du site, quand bien même ils participent d'une structure globale. Ainsi, nous avons choisi d'exprimer au moyen de jeux d'enduits et de bois propres aux constructions limitrophes sans pour autant tomber dans le mimétisme. Cette disposition nous permet de conserver la lisibilité du bâtiment et de l'intervention effectuée tout en lui conférant un aspect élégant sans être précieux
équipe
Architecte mandataire : BEATRICE CLERGET ARCHITECTE
Architecte associé : LINEAIRE A
BET Fluides / Elec : BETICS
BET Structures : COGECI
Economiste / OPC : RUNAE