Le Concorde
La Roche sur Yon | 2023
Infos
- maîtrise d'ouvrage Ville de La Roche sur Yon
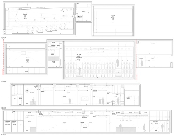
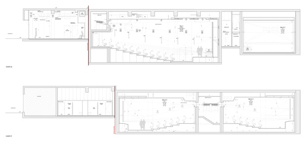
- surface 1 300 M²
- coût des travaux 2 150 000 € HT
- livraison 2023
équipe
Architecte : Linéaire A
Acousticien : Peutz
BET Fluides SSI : ISCO
OPC : ORCOS