Marché couvert de Maubeuge
Maubeuge | 2025
Infos
- maîtrise d'ouvrage Ville de Maubeuge
- surface 2 600 M²
- coût des travaux 4 700 000 € HT
- livraison 2025
La place de Wattignies est bordée par deux axes structurant du quartier. Ces venelles constituent à l’échelle du quartier l’agrafe entre les axes majeurs reliant le centre-ville, le pôle gare, les équipements commerciaux et le futur pôle de loisirs. Le projet s'appuie sur ces éléments structurants.
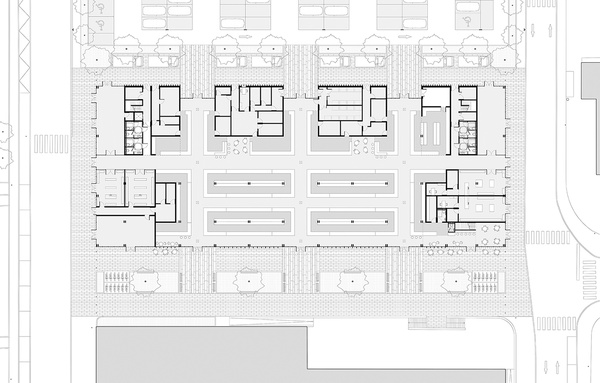
L’implantation de la halle de marché traduit plusieurs volontés :
- Ancrer le programme commercial sur les flux principaux du quartier et de la ville.
- Positionner la halle dans un rapport direct avec le bâtiment de la future médiathèque.
- Préserver une grande partie de la parcelle dédiée au stationnement et au marché volant.
Enjeux principaux : la transparence de la halle du marché vers la future médiathèque et l’éclairage naturel de l’ensemble de la surface de la halle.
La façade ouest et les façades pignons sur les avenues sont libérées des emprises techniques pour y placer uniquement des espaces vivants. Les locaux « opaques » se retrouvant sur la façade Est côté parc de stationnement. Le bloc technique est divisé en quatre parties encadrants des traversées physiques et visuelles à travers la halle. La toiture répond aux deux enjeux cités précédemment. Structurellement simple, c’est une toiture à double pente calée sur la trame intérieure. Sa conception se fait tel un « pliage » et réponds aux différentes contraintes tout en limitant le nombre de pentes différentes et en évitant les interfaces complexes. En coupe, elle présente trois cas de figures complémentaires :
- Sur les trames ouvertes vers l’ouest, elle est d’une simple pente sur toute la largeur de la halle afin de maximiser l’ouverture visuelle vers la médiathèque à travers le bâtiment.
- Sur les trames des volumes techniques, la toiture est inclinée au centre afin de créer des larges bandes vitrées éclairant l’espace central de la halle.
- Sur les pignons, les deux pentes des trames précédentes permettent de créer le profil traditionnel des halles de marché : une toiture à double pente.
Le principe de façades se décline en deux types : A l’est, les façades des quatre blocs techniques en béton architectural et les façades nord ouest et sud en murs-rideaux des parties commerçantes. Les murs-rideaux sont équipés de clins verticaux en bois pour occulter le surplus d’ensoleillement et rythmer la façade.
Les étals du marché ont été positionnés de manière à créer une continuité permanente entre les différentes entités. Les étals sont disposés sur un réseau de circulations lisibles, continues et claires.
Le parvis est traitée à la fois comme un espace dynamique entre les deux futurs équipements et comme un espace de détente. Des espaces plantés équipés de bancs à l’ombre des arbres encadrent les accès au marché dans la continuité des circulations intérieures. La trame intérieure de la halle se poursuit sur le parvis par ses équipements et une différenciation des revêtements de sol. Les trois allées de circulation transversale, sont la continuité de la trame intérieure sur lesquelles seront implantés les étals extérieurs autour des espaces verts du parvis. Cette continuité intérieur / extérieur pourra se prolonger au-delà des aires de livraison sur le parc de stationnement.
équipe
- LINÉAIRE A (Architecte mandataire)
- ETBE (Fluides)
- SIBEO (Structure)
- 2SI (SSI)